El Ayuntamiento de Pedreguer ha aprobado este jueves 30 de octubre, por unanimidad, el proyecto de ejecución para la rehabilitación del edificio “Centre Artístic Musical”, una actuación valorada en 1.185.773,75 euros (1.434.786,24 euros con IVA). El expediente se someterá ahora a información pública durante 20 días hábiles antes de iniciar el proceso de licitación de las obras.
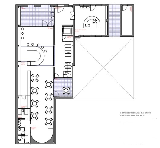
El proyecto contempla una rehabilitación integral que respetará las fachadas originales, al estar protegidas, y mantendrá la estructura del inmueble. Se incorporará un nuevo núcleo de comunicaciones accesible con escalera y ascensor, así como espacios a doble altura y abiertos al exterior.
El edificio principal conservará su uso musical y de cafetería, mientras que el inmueble anexo se destinará a punto de información y oficina de turismo, cumpliendo así con la voluntad de los hermanos Comes, antiguos propietarios del edificio y donantes al consistorio.
Un espacio cultural renovado y abierto al público
La planta baja del Centre Artístic Musical contará con un hall a doble altura que conectará con la cafetería, el núcleo de comunicaciones y el punto de información turística. La cafetería dispondrá de escenario para conciertos, zona de bar y cocina, además de servicios adaptados.
En la primera planta se habilitará una sala de música con acceso al balcón, y en la cámara superior, una sala polivalente para diferentes usos culturales.
El alcalde Sergi Ferrús Peris destacó que la rehabilitación de la Musical “forma parte de la apuesta municipal por la cultura, el patrimonio y la dinamización del casco urbano”.
Aprobaciones económicas y ajustes presupuestarios
El pleno aprobó también, con los votos favorables de Compromís y el PSPV-PSOE y la abstención del PP, un reconocimiento extrajudicial de créditos por valor de 51.447,10 euros, destinado a diversos servicios municipales, como la recogida de residuos, mantenimiento de zonas verdes o la comunicación institucional del ayuntamiento.
Además, se dio luz verde a una modificación de crédito de 174.072,40 euros, financiada con el remanente líquido de tesorería, que se dedicará a programas europeos, actividades culturales, tratamientos de residuos, estudios técnicos —entre ellos, uno sobre la posible creación de una cooperativa de vivienda— y una aportación a la Entidad de Gestión y Modernización Les Galgues para un estudio de inundabilidad.
Cambios en las ordenanzas fiscales
Por unanimidad se aprobó también la modificación de la ordenanza fiscal de plusvalías, que equipara las parejas de hecho a los cónyuges en la bonificación del 75 % en caso de fallecimiento. Asimismo, se elimina la necesidad de solicitar expresamente esta bonificación, bastando con lo manifestado en escritura pública notarial.
El único punto que recibió votos en contra —por parte del PP— fue la modificación de la ordenanza del Impuesto sobre Bienes Inmuebles (IBI). La propuesta del equipo de gobierno busca ajustar el tipo impositivo urbano del 0,56 al 0,62, lo que supondrá un incremento medio de unos 23 euros por vivienda de 100 m², con el fin de mantener los servicios municipales y afrontar el aumento de costes.
El uso del remanente, bajo control legal
Durante el debate, Sergi Ferrús Peris, también responsable de Hacienda, quiso aclarar el papel del remanente de tesorería municipal, superior al millón de euros:
“No nos sirve para cuadrar presupuestos, porque, como hemos explicado ya muchas veces, ese dinero no pueden empezar a gastarse hasta el segundo trimestre del año… no se queda en los bancos, sino que se ha empleado, entre otras cosas, para poder poner la parte municipal en los más de 6 millones de euros que nuestro ayuntamiento ha podido ingresar de diputación y Generalitat desde 2019 en subvenciones”.
Ferrús recordó que este fondo se ha utilizado para financiar proyectos como la restauración del Castell de l’Ocaive, la mejora del Camí de les Passeres, obras del Pla Convivint y la rehabilitación de la Musical, entre otros.

