Cultura

Dénia presenta el proyecto para la actualización, renovación y adecuación de los museos de la ciudad

Se prevé la instalación de un centro de interpretación histórico en el castillo de Dénia
Proyecto para la adecuación de los museos de la ciudad / Ayuntamiento de Dénia

El alcalde de Dénia, Vicent Grimalt, el concejal de Cultura, Raúl García de la Reina y la responsable del área de Arqueología de Ajuntament, Massu Sentí, han comparecido en rueda de prensa para presentar la primera fase del programa de renovación, adaptación y reforma que afectará a los museos de la ciudad para su adecuación a la normativa.

El plan de acción, a desarrollar en cinco años, nace de las recomendaciones de la Conselleria de Cultura, la cual advirtió de la obsolescencia de las instalaciones, a las cuales convenía, según una resolución de la directora general de Cultura y Patrimonio hecha pública en 2020 y el posterior estudio encargado por el Ajuntament en 2021, dar accesibilidad a todo el público (rampas y ascensores para personas con diversidad funcional), democratizar el acceso a la información de cartelas y señalética (inclusión del braille y audioguías, además de la incorporación de más lenguas de la Unión Europea), reforzar la seguridad para las personas visitantes y las piezas de la colección (protocolos de evacuación, sistema de vitrinas estanco antirrobo e impermeables, detectores de humo, sistema de videovigilancia, entre otras), así como asegurar condiciones de temperatura y humedad necesarias para la conservación de las obras.

Grimalt ha destacado la importancia para una ciudad como Dénia, que “no solo recibe un turismo de sol y playa”, de mostrar la riqueza de su historia, no solo a los turistas, sino a sus ciudadanos, ya que, asegura, “es triste no conocer la propia historia”.

Sentí ha destacado la urgencia de una base de datos patrimonial con el fin de catalogar los “miles de objetos no expuestos” que se encuentran actualmente en unos almacenes “al límite de su capacidad”; con la intención futura de que los servicios arqueológicos de la ciudad cuenten con una página web accesible a cualquier usuario. Previa a esta catalogación, está previsto que se redacte un protocolo de inventariado de las piezas y se lleven a término los pertinentes
trabajos de restauración.

Por su parte, García de la Reina ha subrayado “la deuda de Dénia con su legado”, haciendo referencia al mal estado de las instalaciones museísticas en relación a la gran cantidad de objetos históricos hallados en el municipio. Tanto el concejal como el alcalde han querido felicitar al personal de los museos y a la arqueóloga municipal por todo el trabajo realizado.

Traslado del Museo Arqueológico

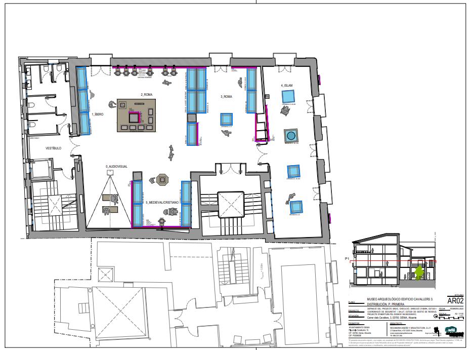
La primera acción del plan será el traslado de la colección permanente del Museo Arqueológico, ubicado en el castillo de Dénia, a la casa de Cavallers, 3, debido a la falta de espacio. Las piezas se expondrán en la primera planta del edificio, con una superficie de unos 299 m2. El edificio decimonónico albergará la colección arqueológica de forma temporal; la ampliación y distribución definitiva de la colección se irá diseñando más adelante, según ha comentado García de la Reina.

En la primera planta de Cavallers, 3, se expondrá el material exhibido actualmente en el castillo y nuevas piezas guardadas en los almacenes municipales, ya que las dimensiones del nuevo espacio así lo permiten, según ha expuesto Sentí. Esta primera instalación contará con cinco espacios diferenciados: zona de proyección audiovisual, zona íbera, dos zonas romanas, zona islámica y zona cristiana medieval.

El proyecto museístico para Cavallers cuenta con un presupuesto de 151.249 euros, los cuales saldrán del fondo europeo Next Generation, dentro del Plan de Recuperación, Transformación y Resiliencia, gestionado por la Generalitat Valenciana.

Centro de interpretación ‘Dénia. Ciudad vigía’

En el espacio de 195 m2 desocupado en el actual Museo Arqueológico se desarrollará el proyecto ‘Dénia. Ciudad vigía’; la idea es instalar un centro de interpretación histórica en el cual poner de relevancia el puerto de Dénia como enclave fundamental en el comercio y el tránsito marítimo de las distintas épocas, así como en el devenir histórico de la ciudad. La exposición pretende realizar
una labor didáctica y divulgativa, mostrando la evolución urbana, social y cultural de Dénia, dando especial importancia a hitos como la concesión del título de ciudad por Felipe III o la guerra de secesión española.

La visita se dividirá en tres partes, aunque el recorrido será libre: contará con una zona de maquetas, para aproximar de manera didáctica al visitante la evolución histórica de la ciudad; otra con vitrinas donde se ubicarán objetos arqueológicos relacionados con cada periodo de la historia de la ciudad, y una tercera en la que se proyectará material audiovisual. Además, el proyecto contempla la instalación de puntos de observación en las las ventanas del edificio para que actúen como “observatorios de fechas históricas”, es decir, que reflejen en el paisaje hitos históricos y culturales.

Según datos facilitados por Sentí, solo el 27% de los usuarios que acceden actualmente al castillo visitan la exposición del Museo Arqueológico, lo cual se debe en parte a su horario reducido, pero pone de relieve, para la arqueóloga, la deficiencia en materia de señalética e información. Este proyecto cuenta con un presupuesto de 135.750 euros, también financiados mediante una subvención europea de los fondos Next Generation, dentro del Plan de Recuperación, Transformación y Resiliencia, gestionado por la Generalitat Valenciana

Deja una respuesta

Tu dirección de correo electrónico no será publicada. Los campos obligatorios están marcados con *