El Ayuntamiento de Dénia ha comenzado las obras de reforma y habilitación de un local municipal en el número 7 de la calle Sagunt, donde próximamente se abrirá el centro de barrio París Pedrera.
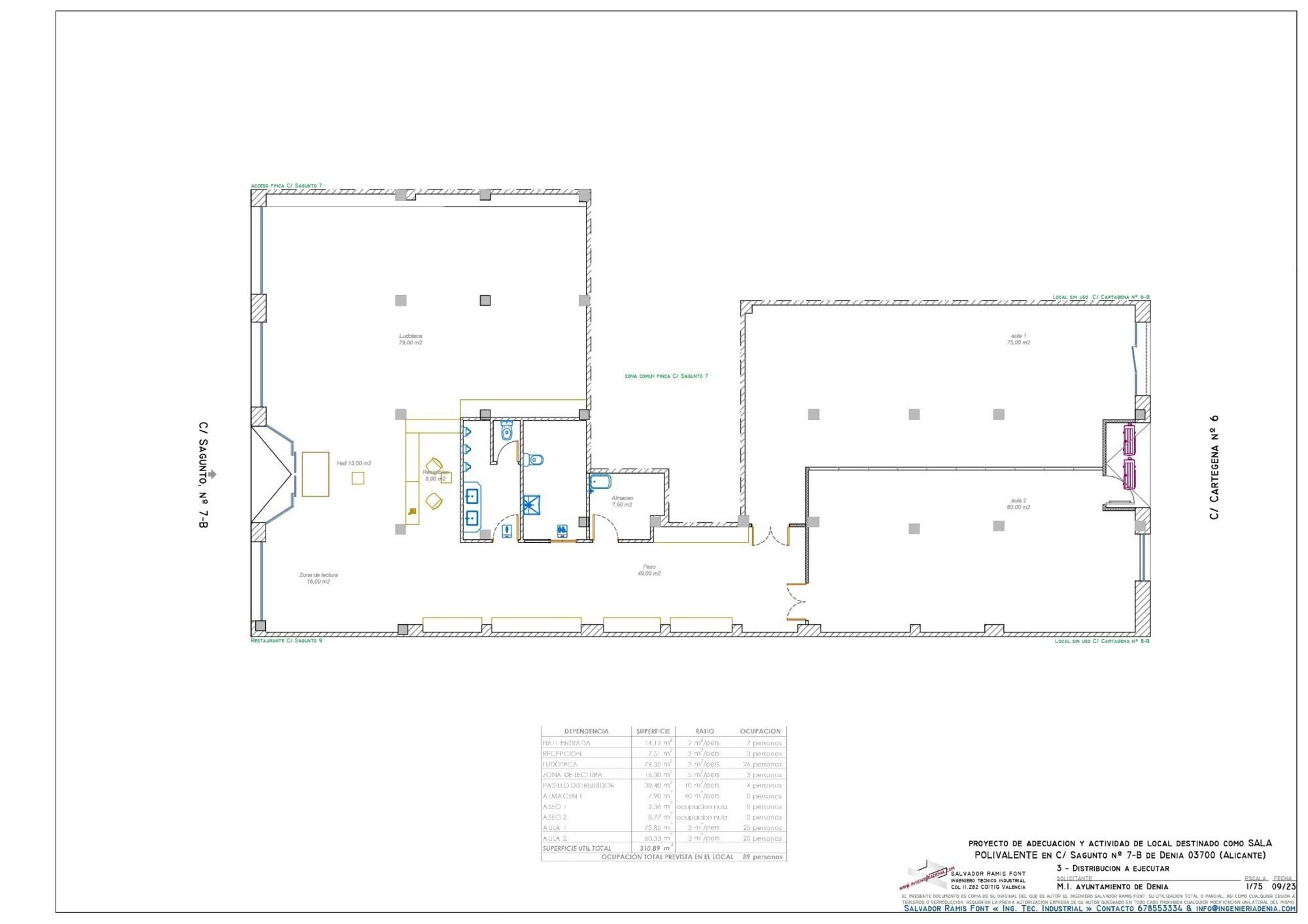
Este nuevo espacio de 310,89 metros cuadrados tiene como objetivo acoger diversas actividades para la infancia, la adolescencia y las personas mayores, a cargo de las concejalías de Bienestar Social y del Mayor. Las obras han sido adjudicadas por un total de 288.358,73 euros (IVA incluido) y el plazo de ejecución de los trabajos es de tres meses. Este centro de barrio busca convertirse en un espacio de encuentro, aprendizaje y convivencia para los diversos grupos de la comunidad de Dénia.
Un espacio dinámico para el aprendizaje y el esparcimiento
Según Melani Ivars, concejala de Bienestar Social, “aprovechando los dos perfiles de personas usuarias, se fomentarán también las actividades intergeneracionales como hemos hecho en otras iniciativas como los ‘Parques Habitados’. Este tipo de actividades, que promueven el intercambio de experiencias y conocimientos entre generaciones, es una de las acciones que forma parte del plan “Dénia, Ciudad amigable con las personas mayores”, tal y como recordó Marta Gascó, concejala del Mayor.
El centro se convertirá en una de las sedes del Consell Local d’Infància i Adolescència (CLIA), que será el encargado de proponer actividades para el espacio. Uno de los proyectos más destacados es la creación de una biblioteca del juego, que contará con juegos didácticos y de mesa para que los niños, niñas y adolescentes puedan compartir entre ellos.
Además, se habilitará una zona de lectura en las amplias áreas situadas a ambos lados de la recepción, que también contará con dos lavabos accesibles y un pequeño almacén.
En la parte posterior del local se crearán dos aulas separadas por un panel móvil que permitirá adaptarlas según las necesidades. Estas aulas estarán a disposición de la Concejalía del Mayor para impartir talleres dentro de las Aulas de la Tercera Edad, así como para organizar charlas y otras actividades dirigidas a la tercera edad. También se celebrarán las reuniones del Consell del Major y otras actividades contempladas en el plan de Ciudad Amigable con las personas mayores.
